APARTAMENT SZUCHA, ŚródmieścieMieszkanie, 4.300.000 zł

Na sprzedaż wyjątkowy apartament o powierzchni 124 m² zlokalizowany na ostatnim piętrze przedwojennej kamienicy przy Alei Jana Chrystiana Szucha, jednej z najbardziej prestiżowych i rozpoznawalnych ulic Śródmieścia Południowego.

OPIS I STANDARD:
Wnętrza wyróżniają się ponadstandardową wysokością sufitów (ponad 3 metry), co w połączeniu z dużymi oknami daje poczucie przestrzeni i światła. Na podłogach zachowany klasyczny parkiet w jodełkę, a całość utrzymana jest w jasnej, eleganckiej stylistyce, pozwalającej na łatwą aranżację zarówno w stylu klasycznym, jak i nowoczesnym.
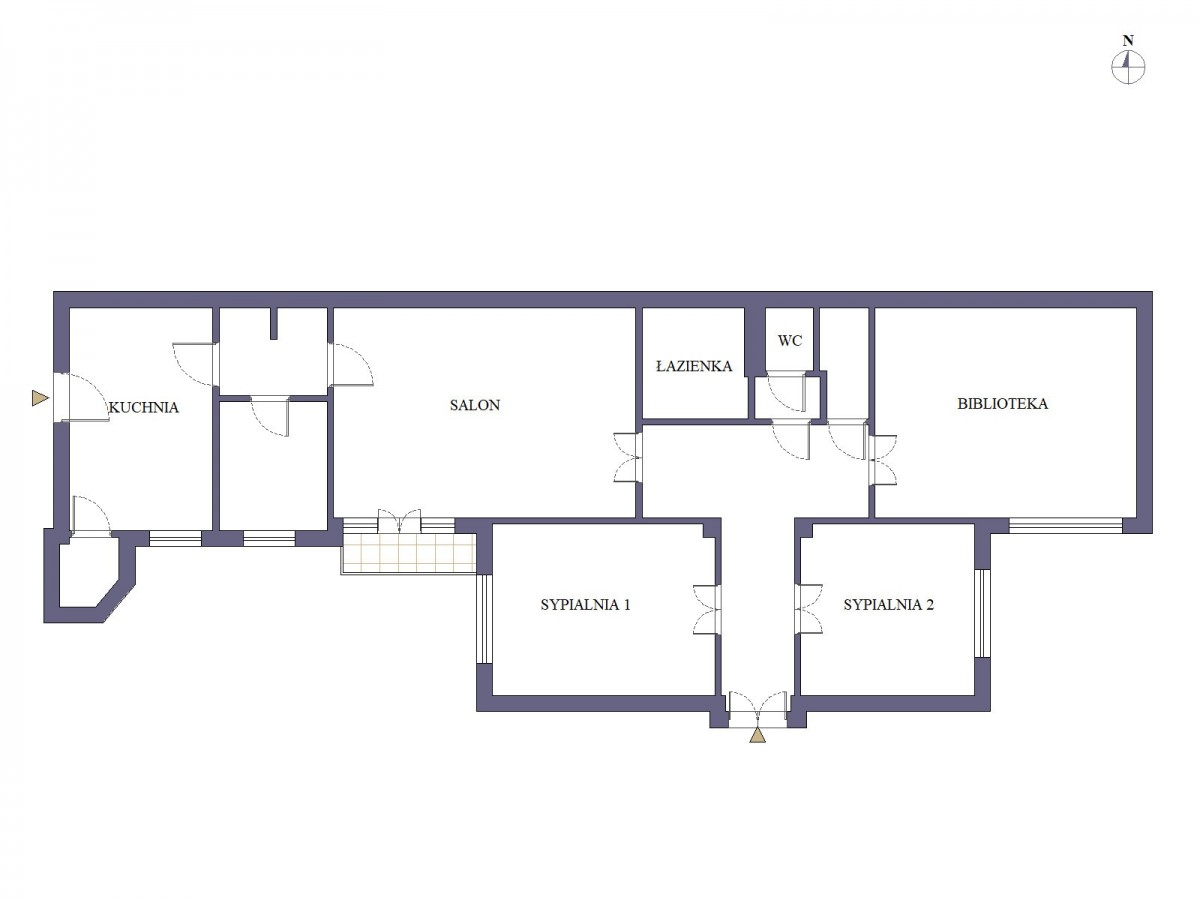
Apartament oferuje funkcjonalny podział na strefę dzienną i prywatną, dwie komfortowe sypialnie, gabinet idealny do pracy zdalnej oraz łazienkę z oddzielną toaletą. Kuchnia jest osobna, z miejscem na pełnowymiarową jadalnię.

KOMUNIKACJA I OKOLICA:
Nieruchomość położona jest w samym sercu Śródmieścia Południowego, przy Alei Jana Chrystiana Szucha – w bezpośrednim sąsiedztwie ambasad, parków i reprezentacyjnej zabudowy przedwojennej Warszawy.
Doskonała komunikacja miejska: bliskość metra Politechnika, licznych linii tramwajowych i autobusowych zapewnia szybki dojazd do każdej części miasta. W okolicy znajdują się restauracje, kawiarnie, sklepy, parki (Łazienki Królewskie, Pole Mokotowskie) oraz pełna infrastruktura miejska.

W SKRÓCIE:

– 124 m²
– 5 pokoi
– 2 sypialnie
– Gabinet
–  Łazienka z osobną toaletą
– Wysokość wnętrz ponad 3 m
– Piętro 6 z 6 (ostatnie)
– Kamienica z 1930 roku
– Jasne, przestronne wnętrza
– Klasyczny parkiet w jodełkę
– Gotowe do zamieszkania

Dodatkowo:
– Reprezentacyjna kamienica w ścisłym centrum miasta
– Ostatnie piętro – brak sąsiadów nad mieszkaniem
– Duże okna zapewniające doskonałe doświetlenie
– Zachowane oryginalne elementy architektoniczne
– Ciche wnętrza mimo centralnej lokalizacji
– Piwnica około 6 m2

W NASZEJ OPINII:
To rzadka oferta dla miłośników klasycznej architektury i prestiżowych lokalizacji. Ostatnie piętro, ponad 3-metrowe sufity, kameralna kamienica z 1930 roku oraz reprezentacyjny adres czynią ten apartament doskonałym wyborem zarówno jako luksusowa rezydencja miejska, jak i bezpieczna inwestycja kapitału w jednej z najlepszych lokalizacji Warszawy.
Zapraszamy do kontaktu i na prezentację!

Zadzwoń do mnie: 787 277 324  [Arek].

Treść niniejszego ogłoszenia ma charakter informacyjny i nie stanowi oferty handlowej w rozumieniu Kodeksu cywilnego oraz innych przepisów prawa.

34964540904
34964540904
34964540904
34964540904
34964540904
34964540904
34964540904
34964540904
34964540904
34964540904
34964540904
34964540904
34964540904
34964540904
34964540904
34964540904
34964540904
34964540904
34964540904
34964540904
https://besso.boltcdn.one/wp-content/uploads/2023/06/14084457/Arek_-160x160.jpg

Arek Zieliński

Doradca ds. nieruchomości

787 277 324
arek@bessoestate.pl